法國,巴黎,巴黎大學 / BTUA+Groupe-6
世界建筑
05-17
2023
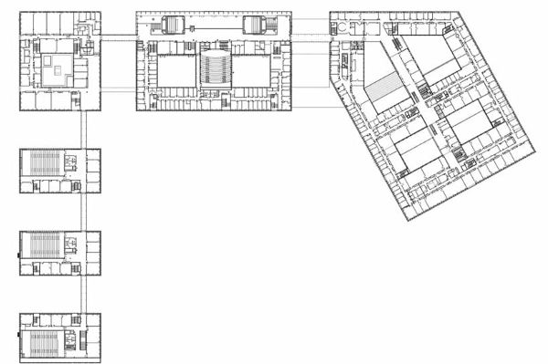
Bernard Tschumi urbanistes Architectes和Groupe-6最近完成了法國最大的教育項目之一,巴黎薩克雷大學的新生物-醫藥-化學研究和教育大樓。這個耗資2.83億歐元的項目位于巴黎,是該大學的一個重要科學中心,占地7.4萬平方米(80萬平方英尺)。該建筑群以玻璃外墻和花紋屏風為正面,由三個獨立的教育和研究翼樓組成,由一個被稱為“C?ur de P?le”的中央中庭連接,并設有研究實驗室、教室、禮堂、社交空間、餐廳、辦公室、后勤區域和地下停車場。
正如設計團隊所指出的,“C?ur de P?le”是巴黎-薩克雷大學的主要入口和十字路口。它引起動態交流,通過清晰的流通和沿著兩條連續的內部“街道”的空間分布,鼓勵科學合作。Bernard Tschumi和他的團隊創造了一個建筑和城市規劃,其中包括六座由透明人行橋和一條連續的 "街道 "連接起來的建筑。這種創新的設計跨越了下面的街道,創造了一條高架的、幾乎一公里長的動脈,將整個建筑群連接起來。
Groupe-6設計的研究區位于中庭的東面,沿Rue de la Recherche設有最先進的實驗室、研究人員的工作空間和愉快的會議場所。設計中特意使用了一些簡單的元素,如玻璃、光線和白色的表面,與之形成對比的是使用了穿孔吸音OSB木板,利用可持續的低成本材料創造出視覺上的溫暖氛圍。該建筑群通過地熱井與大學的能源網相連,并獲得了符合法國綠色建筑高質量環境標準的認證,具有很高的能源效率。
生物-藥學-化學研究和教育中心向巴黎薩克雷大學介紹了最先進的研究和教育設施、精心設計的公共區域和環保建筑材料,通過其建筑展示科學卓越。
“C?ur de P?le”體現了建筑的獨創性,因為它具有組織良好的布局和空間之間的輕松移動。它是跨學科合作的催化劑,鼓勵生物學、化學和藥學等不同領域的整合。 Bernard Tschumi urbanistes Architects 和 Groupe-6 的最新合資企業將在該大學的擴建中發揮關鍵作用,并作為其世界知名的科研設施的門戶。
項目信息:
項目名稱: 巴黎-薩克雷大學
建筑:Bernard Tschumi _urbanistes_ Architectes, Groupe-6
地點:法國,巴黎,巴黎大學













