中國,江蘇省,蘇州市,山灣村水杉林餐廳 / GOA
世界建筑
08-10
2022
建筑事務所GOA已經完成“水杉林餐廳”,這是一個由不同大小的金字塔形殼模塊組成的單層建筑。該項目位于中國的山灣村,是政府鄉村振興計劃“吳江-美麗鄉村”的第一個開發階段,旨在促進當地農業、文化和旅游的發展。建筑既可作為餐廳,又可作為多功能的宴會廳,以舉辦各種公共活動。它的建筑風格以水杉樹的形態為線索,水杉樹靜靜地矗立在場地南側的一大片水面上。
GOA解釋說:“與其說水杉林餐廳是一個建筑,不如說是一個景觀,它沉浸在自然環境中,最終成為自然的一部分。它在水邊提供了快樂的時光,也提供了一個和平的自然體驗,在這里,建筑能夠以新的方式來看待景觀”。
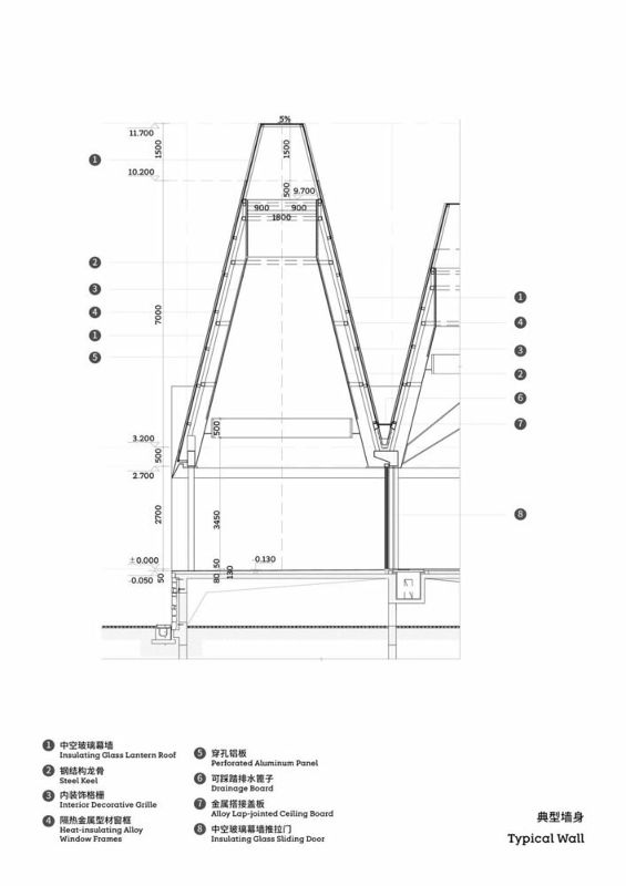
GOA開發的這個項目是為中國村莊的整個社區提供一個溫馨的公共客廳。工作室將附近水杉樹的形態轉化為一種純粹的幾何建筑語言,作為設計的特色標志和模塊的靈感。建筑頂部的金字塔形模塊有三種不同的尺寸,它們混合在一起,形成一個連續的樹冠結構,在自然界中描摹出一個人造森林的輪廓。
天蓬的整體高度低于12米,而每個金字塔形的模塊頂部都有一個天窗,讓自然光進入室內。屋頂系統由三層組成:首先,定制的穿孔鋁板作為外層,紋理如同水杉樹的分層樹冠,玻璃作為中間層,引入更大的光照度,烤木板覆蓋內層。
GOA指出:“該項目為游客提供了一個體驗景觀的新視角”。天棚的屋檐均勻地降低到2.7米,為周圍的濕地風景提供了水平視野。為了強調天幕的輕盈性,餐廳的承重柱被減少到了10根,排列在室內空間的內部邊緣。每根低承重柱由3根細長的鋼柱組合而成,每根鋼柱的直徑為10厘米。只有11根直徑為15厘米的鋼柱沿著屋檐下的外部露臺邊緣設置。
定制的單層落地窗寬度超過2米,框架狹窄,增強了空間的巨大視覺開放性。
建筑公司說:“雖然還沒有正式開放,但游客已經成群結隊而來,通過柔和地融入承載著精致質樸紋理的水邊景觀,從而用建筑增強對壯麗自然風光的體驗,該項目真正實現了其為現有村莊構建新景觀的設計愿景”。
項目信息:
名稱:山灣村水杉林餐廳
建筑師:GOA(建筑師集團)。
地點:中國江蘇省蘇州市吳江區
建筑面積:416平方米
攝影師:IN BETWEEN, GOA


















