荷蘭,鹿特丹,聯合利華荷蘭辦公樓/ JHK Architecten
世界建筑
11-17
2021


這座辦公樓跨越如今的工廠綜合建筑。它與現有的歷史建筑一同代表了眾多工業形式、建筑與材料的至高榮耀。建筑物由于其規模與方位,在鹿特丹第一大道——馬斯大道的入口處格外引人注目。在其內部還能欣賞到城市美麗的天際線。

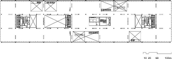
新辦公樓共有4層,平面尺寸為32米×133米。最低層的水平面高于碼頭25米。主要入口位于碼頭上,旁邊就是19世紀建造的經典辦公大樓。電梯和樓梯均位于內院,將這些樓層向外敞開。
在辦公樓上可以欣賞到馬斯河對岸市中心的全貌,景色蔚為壯觀。中庭和天井使得自然光線灑滿整個建筑。有意保留部分未用的空間,是為了確保中央區域能獲得充足的照明。

透明度不僅在外立面可以看到,它還使整個建筑給人們留下了利于溝通與交流的印象。因此,該建筑充分響應動態辦公布局的需要,讓人們能在輕松隨意的氣氛中洽談公事。
















附件:
